čtyřsloupový zvedák WERTHER 450 ATLT

Čtyřsloupový zvedák WERTHER 450 ATLT

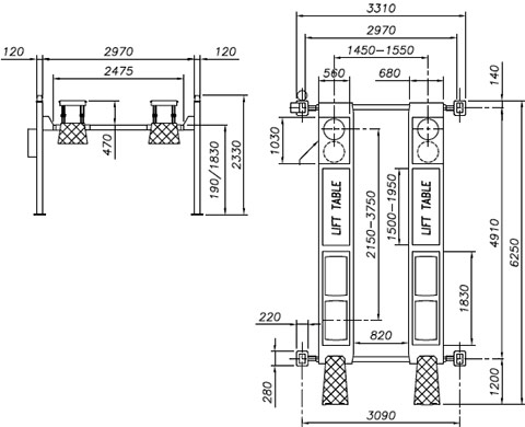
čtyřsloupový hydraulický zvedák WERTHER 450 ATLT s nosností 5 000 kg
automatické odblokování bezpečnostních západek tlačítkem z ovládacího panelu
v plošinách zabudované nůžkové přizvedávání
vyklenutí pro přední geometrii (točnice)
zabudované pohyblivé desky pro zadní geometrii
max. zdvih 1 830 mm + 470 mm přizvedávání
délka plošin 5 200 mm
celková délka 6 250 mm
celková šířka 3 160 mm
vzdál. mezi sloupy 2 970 mm
celková výška 2 330 mm
motor 3,0 kW, napájení 400 V / 50 Hz
hmotnost 1 730 kg
italský výrobce WERTHER s tradicí 50 let

Cena   454 700   Kč   +   DPH